Stichting Bunkerbehoud
Privacy
Mail
Home
Bezoek
Projecten
Behoud
Onderzoek
Over de stichting
Donateur of vrijwilliger worden?
Schenking
Links
Inloggen
Start
Dakspanten
Spanten geplaatst
Pannenlatten
Eerste pannen
Dak dicht
PZC 24-07-2014
Ontwerp camouflage
Ontwerp 2
Steigers weg
Pre-paint
Het bord
Begin schilderwerk
Werkzaterdag
Meer schilderwerk
Vroege lentedagen in 2015
April 2015
Mei 2015
Juni 2015
Luchtfoto's
De opening
Werk van binnen
De oplevering
De tetraeders
September 2015
Maart 2016
Juli/aug 2016
Abeele
Projecten
Meer ontwerpen
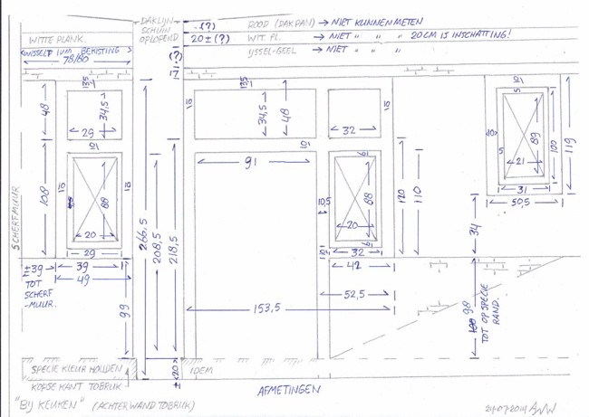
De bijkeuken is verder ingevuld met de maten.
En de vlakken zijn voorzien van de beoogde kleuren.
Het grote vlak in de serre met de maten.
En de kleuren.
Het ontwerp voor de westelijke zijmuur. De "erker".